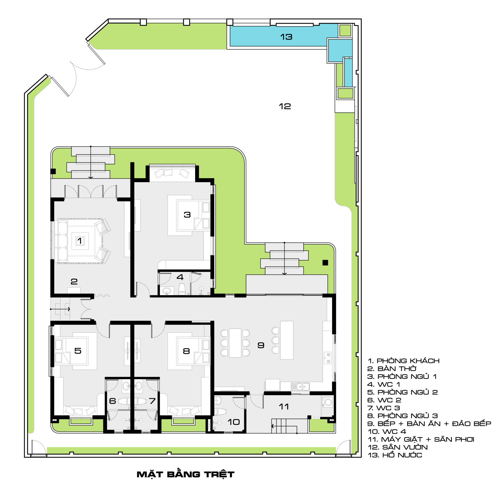
SANGNGHIA’S HOUSE

SANGNGHIA’S HOUSE

Địa chỉ:
THÔN BÌNH LONG | XÃ PHAN RÍ THÀNH | BẮC

DỊCH VỤ XÂY DỰNG TRỌN GÓI CAO CẤP.

AN TOÀN - CHUYÊN NGHIỆP - TỐI ƯU.

Trải nghiệm dịch vụ chất lượng cao, chúng tôi tự tin mang đến cho ngôi nhà của bạn:

• Tổ chức hiện trường chuyên nghiệp

• Dự toán hiệu quả, kiểm soát phát sinh

• Quản lý hồ sơ kỹ thuật chuẩn chỉnh

• Kinh nghiệm triển khai dự án quy mô lớn

• Thiết kế tinh tế, thi công sắc nét.

👉 Và nhiều ưu điểm vượt trội mà chúng tôi đã nổ lực tạo nên, tất cả nhằm mang đến dịch vụ xây dựng trọn gói cao cấp.

Xây Dựng Thiên Thành - thương hiệu thiết kế - thi công xây dựng chất lượng hàng đầu .

——————————

• Với Nhiều Kinh nghiệm • Thực hiện 300+ dự án lớn nhỏ •

——————————

Thông tin liên hệ:

• Website: xaydungthienthanh.com.vn

• Văn Phòng: 127 Ngô Đức Tốn, Phường Bình Thuận, Tỉnh Lâm Đồng

• Hotline: 0914 802 989